Спальня это особенная комната, которая отражает личные качества живущего тут человека. Уединившись в спальне, мы можем расслабиться и отдохнуть от каждодневной суеты. Самостоятельный ремонт спальни — процесс нелегкий. Стоит его распланировать заранее и определиться с тратами на материалы и мебель. Делая ремонт в спальне и выбирая стиль, исходят из личных предпочтений и желаний. Конечно, можно остановиться и на гламурном хай-теке и на соблазнительном арт-деко, но данные направления сложны и дороги в правильном оформлении и выборе мебели и текстиля. Для самостоятельного ремонта подойдет спокойная тематика спален в скандинавском стиле, имеющем простоту и легкость отделки. Будет уместна и современная классика, как облегченный вариант традиционного оформления. И здесь назревает вопрос: С чего начать ремонт спальни своими руками?
Перед тем как сделать ремонт в спальне своими руками или начать ремонтные работы, необходимо хорошенько обдумать, какая именно будет отделка и какие бы вам хотелось добавить детали декора.


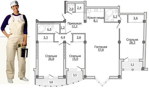
1 шаг: Составление проекта
Перед составлением проекта нужно определиться с функциональностью вашей спальни. Тогда проект будет составить гораздо проще. В настоящее время существуют компьютерные программы, с помощью них можно легко и быстро составить проект. Для тех, кто не очень дружит с компьютером, можно конечно старым методом, нарисовать проект на листе бумаги.
Первый аспект проекта будет место для кровати. Здесь нужно будет решить, какая будет ширина и дизайн кровати. Потому как, опираясь на эти данные можно планировать дальше, какие еще атрибуты интерьера вы сможете разместить в спальне. Спальню нужно проектировать таким образом, чтобы к кровати был свободный подход.


Ну, а если в комнате двое человек, тогда соответственно свободный подход должен быть с обеих сторон.
Также в проект спальни обязательно вносим все остальные элементы мебели и детали декора крупных размеров.
Если ремонт капитальный, тогда в проекте отмечаем план разводки электрокабеля.
Спальню можно сделать в разных стилях. На это будут влиять квадратные метры и предпочтения жильцов этой квартиры.
2 шаг: Выбираем стиль комнаты
Для небольшой спальни
Какие идеи ремонта спальни существуют для небольшой спальни?
Спальни, с площадью 10-12 кв. м, не нужно обставлять большим количеством мебели. В этом случае прекрасный вариант это стиль минимализма, или хай — тек. Так же на маленькой площади можно сделать ремонт в классическом стиле. Он подразумевает светлые тона. Классика с использованием мебели в винтажном стиле, в настоящее время считается популярным дизайнерским решением.
Кроме того, для малогабаритных спален подойдет скандинавский и средиземноморский стиль. Здесь так же все делается в светлых тонах, но так же могут и допускаться яркие цветовые решения.


Для большой спальни
Все ранее описанные стили, так же подойдут и для спален с площадью 18-25 кв.м. В последнее время стало очень модно отделывать спальни в стиле прованс. Этот стиль прекрасно подходит для спальни супругов и для спальни девочки.
Прованс это старейший французский стиль, который подразумевает, признаки деревенского стиля и за счет это спальни смотрятся с одной стороны просто и красиво, а с другой загадочно и необычно.


3 шаг: Этапы ремонта
Так как сделать ремонт в спальне? Ремонт нужно проводить последовательно, тогда в итоге ремонт будет совершенным.
Убираем мебель
По возможности убираем с комнаты всю мебель и приступаем к демонтажу старых строительных материалов. Обои убираем шпателем. Это надо сделать очень тщательно. Чем лучше вы снимите старые обои, тем легче будет клеить новые.
Снимаем штукатурку
Не забываем о потолке, если на нем где-то осыпалась штукатурка, то ее необходимо аккуратно удалить.
Демонтируем двери
Далее если вы планируете менять двери, тогда их снимаем с петель и демонтируем дверную коробку.
Снимаем напольное покрытие
И в последнюю очередь снимаем напольное покрытие и убираем с комнаты весь строительный мусор.
Проводка
Замена проводки осуществляется до начала косметического ремонта. А вот провода в кабель каналы размещаются после того как будет произведена отделка стен и потолков.
Отделка и ремонт
Ремонт спальни всегда начинают с потолка, не зависимо от его вида отделки. После потолка идет отделка стен. Как только отделка потолка и стен закончена, приступаем к монтажу напольного покрытия. После этого монтируется межкомнатная дверь.
Оставшиеся небольшие ремонтные работы выполняем в конечном итоге. Это, например, прикручивание кабеля, монтаж плинтусов и т.д. После окончания всех ремонтных работ, в комнате проводим генеральную уборку
В спальне после ремонта следует обязательно провести тщательную влажную уборку. Затем хорошо проветриваем спальню и тогда только расставляем мебель, вешаем люстру и занавески.
Если необходимо расставляем предметы декора и цветы.
Ремонт в узких спальнях
Создать красивый интерьер в узких спальнях бывает не так-то просто. Зачастую узкие комнаты получаются при перепланировках квартиры. Так же такие спальни имеются в пятиэтажках, под названием «хрущевки».


Мебель
В таких ситуациях к ремонту и выбору дизайна нужно подходить очень ответственно. Подобные спальни нужны отделывать в светлых тонах, мебели должно быть по минимуму.
Потолок
Для потолка самым оптимальным вариантом будет покрасить его, опять же в светлый цвет или сделать натяжным. От идеи натяжения на потолок гипсокартона лучше отказаться, потому, как он делает комнату ниже и визуально меньше. А она и без того у нас имеет достаточно маленькую площадь.
Стены
Стены оклеиваем светлыми обоями с простым дизайном.
Пол
Пол может быть и темных тонах, но в цветовой гамме мебели должны доминировать светлые оттенки. Из мебели самый минимум — кровать, прикроватная тумбочка и шифоньер, его лучше приобрести угловой, это поможет дополнительно сэкономить пространство.
После завершения ремонта в узкую спальню добавляем немного ярких аксессуаров. Таким образом, мы преобразим интерьер.
Главное правила при ремонте узких спален: главные акценты делаем на коротких стенах, а длинные делаем как по возможности менее заметными. Под акцентами мы подразумеваем яркий ковер или обои. Если конечно это допустимо выбранным стилем.
По технике проведения ремонта в спальне практически не отличается от ремонта других помещений. Главная задача при планировании — это сделать комнату по максимуму уютной, располагающей к расслаблению и здоровому полноценному сну.